Listing Details

For more information on this listing or other please contact me.

Courtesy of Real Broker.
Data was last updated 2025-06-25 at 20:18:11 GMT

10105 95 Street   Edmonton, Alberta

$270,000
MLS®: E4483634
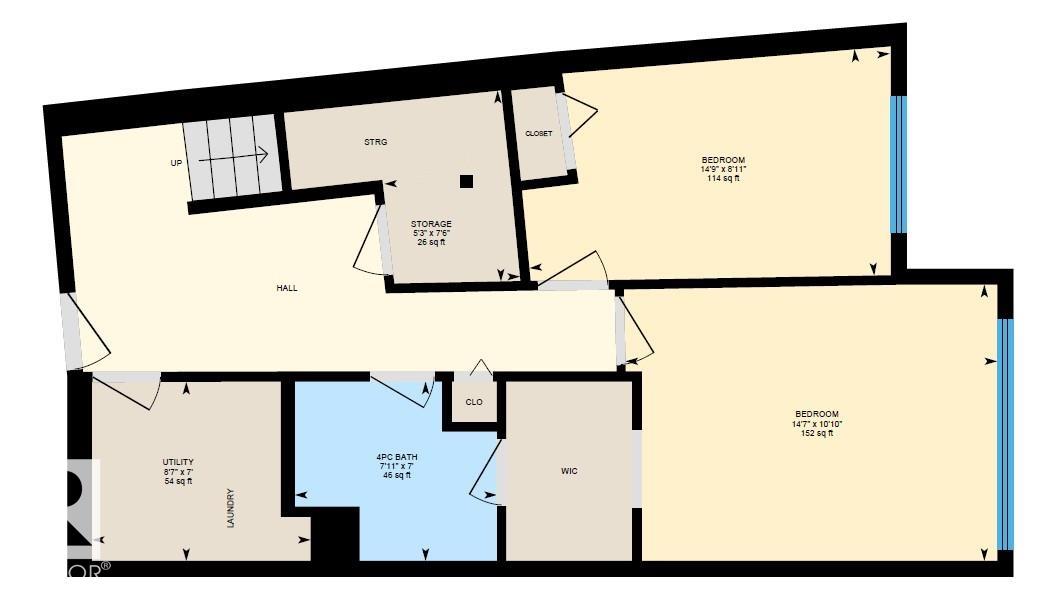
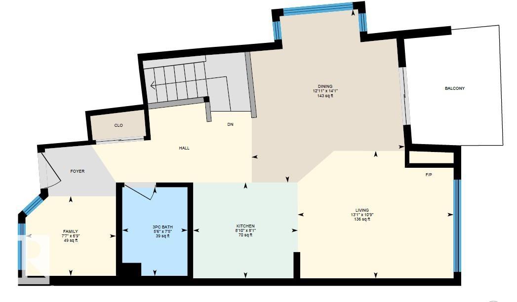
RIVER VALLEY VIEWS - Experience elevated downtown living in this renovated 2-storey end-unit townhouse in Summit in Riverdale. Featuring stunning river valley and skyline views, this modern 2-bedroom, 2-bath home offers an open-concept layout perfect for entertaining. The updated main floor boasts a bright  kitchen with island, spacious living room with gas fireplace, and dining area with large windows and access to a SE-facing balcony with gas hookup. A den/flex space and 3-piece bath complete the level. Downstairs offers laundry and two large bedrooms, including a primary with walk-in closet, renovated ensuite, and private patio opening to green space just steps from the River Valley. Includes 2 underground stalls and 2 storage lockers. Unbeatable location near downtown and trails.

RIVER VALLEY VIEWS - Experience elevated downtown living in this renovated 2-storey end-unit townhouse in Summit in Riverdale. Featuring stunning river valley and skyline views, this modern 2-bedroom, 2-bath home offers an open-concept layout perfect for entertaining. The updated main floor boasts a bright kitchen with island, spacious living room with gas fireplace, and dining area with large windows and access to a SE-facing balcony with gas hookup. A den/flex space and 3-piece bath complete the level. Downstairs offers laundry and two large bedrooms, including a primary with walk-in closet, renovated ensuite, and private patio opening to green space just steps from the River Valley. Includes 2 underground stalls and 2 storage lockers. Unbeatable location near downtown and trails.

Listing Information

Prop. Type:
Townhouse
Property Style:
2 Storey
Status:
Active
City:
Edmonton
MLS® Number:
E4483634
Bedrooms:
2
Neighbourhood:
Riverdale
Area:
Edmonton
Province:
Alberta
Listing Price:
$270,000

General Information

Year Built:
1999
Total Square Feet:
1364ft2

Additional Information

Basement Dev:
None, No Basement
Parking:
Underground

VIP-Only Information

Sign-Up or Log-in to view full listing details:
Sign-Up / Log In
This property is listed by Real Broker and provided here courtesy of Trevor Waddell. For more information or to schedule a viewing please contact Trevor Waddell.
Trevor Waddell
RE/MAX Excellence
Phone: 780-233-6800
Mobile Phone: 780-233-6800
Inquire Via Email
Data is deemed reliable but is not guaranteed accurate by the REALTORS® Association of Edmonton.